売中古住宅価格変更しました
【南風原町宮平中古住宅】
【所在】南風原町字宮平
【土地】113.23㎡(34.25坪)
【建物】100.80㎡(30.49坪)
【交通】当間原バス停 徒歩8分
【価格】3,290万円
強度の高い鉄筋コンクリート造!閑静な住宅街の中古住宅!北丘小学校まで徒歩9分!太陽光発電付き!2台目駐車場確保(徒歩2分)!
※敷地内駐車場:軽自動車2台縦列可!
日程調整の上、内覧可能です!お気軽にお問い合わせください!

img_5456.jpg img_5457.jpg img_5450.jpg img_5451.jpg img_5452.jpg img_5460.jpg img_5464.jpg img_5520.jpg img_5524.jpg img_5523.jpg img_5525.jpg img_5526.jpg

築年月 平成14年7月(築23年)
構造・規模 鉄筋コンクリート造陸屋根2階建
土地面積 113.23㎡ / 34.25坪
建物面積 100.80㎡ / 30.49坪
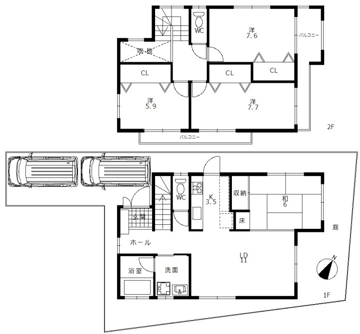
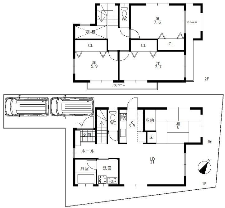
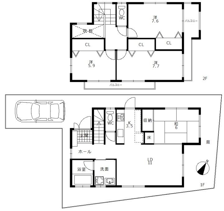
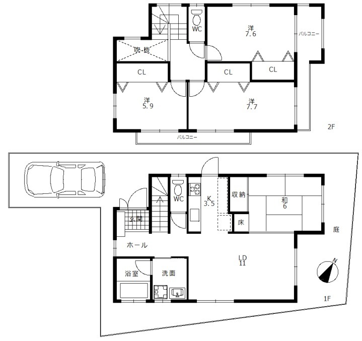
間取り 4LDK
土地権利 所有権
用途地域 1種低層
建ぺい率 50%
容積率 100%
駐車場 1台(近隣契約駐車場有:4,000円/月) ※敷地内駐車場:軽自動車2台縦列可!
現況 居住中
引渡し 相談
情報更新日 2026.01.21
備考

■人気の宮平地域
■4LDK(和6・洋7.7・洋7.6・洋5.9・LDK14.5)
■イオン南風原店・・・徒歩12分
■丸大南風原店・・・・徒歩11分
■北丘小学校・・・・・徒歩9分
■南風原中学校・・・・徒歩16分

お電話でのお問合せ 098-884-8742
 
メールでのお問合せ   ★は必須項目です

物件名:


★お名前:
住所:
★メールアドレス:
電話番号:
ご質問など:

お疲れ様でした。