売中古住宅
【八重瀬町高良中古住宅】
【所在】八重瀬町高良
【土地】175.00㎡(52.93坪)
【建物】73.94㎡(22.36坪)
【交通】高良バス停 徒歩3分
【価格】3,180万円
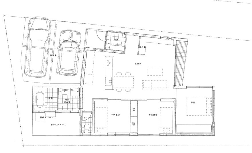
八重瀬町高良に位置する、平成26年11月築の中古住宅のご紹介です。落ち着いた住環境の中に佇む、こだわりの詰まったデザイナーズ住宅。平家建てならではの暮らしやすさと開放感を兼ね備えた、魅力的な3LDKの住まいです。本物件はワンフロアで生活が完結する平家住宅のため、小さなお子様のいるご家庭からご年配の方まで、幅広い世代にとって暮らしやすい設計となっています。階段の昇り降りがないため日常生活の負担が少なく、将来を見据えた住まいとしても安心です。
建物は平成26年11月築と比較的新しく、室内外ともにスタイリッシュなデザインが魅力のデザイナーズハウス。細部までこだわり抜かれた設計により、機能性とデザイン性を両立しています。シンプルで洗練された外観は街並みにも美しく調和し、住む人の個性を感じさせる住まいとなっています。間取りは3LDK。リビング・ダイニングはゆとりある空間設計となっており、ご家族が自然と集まる心地よい空間です。大きな窓からは明るい光が差し込み、開放感のある室内環境を実現。キッチンからリビングやダイニングを見渡せる設計で、家族とのコミュニケーションを取りながら家事ができるのも魅力の一つです。
また、本物件はオール電化住宅となっており、火を使わない安心感と光熱費管理のしやすさが特徴です。IHクッキングヒーターなどにより、快適で安全な生活環境を実現しています。敷地は3方道路に面しており、日当たりや風通しの良さも大きなポイントです。建物の周囲に開放感があり、圧迫感を感じにくい住環境となっています。車の出入りもしやすく、生活の利便性にも優れています。駐車スペースは3台分確保されており、ご家族で複数台お車をお持ちの方や、来客時にも安心です。沖縄では車移動が中心となるため、ゆとりある駐車スペースは大きな魅力となります。
周辺は落ち着いた住宅環境が広がり、静かな暮らしを求める方にもおすすめの立地です。八重瀬町は自然も多く残りながら生活利便施設も整っており、子育て世帯にも人気のエリアとなっています。
デザイン性・機能性・住環境の三拍子がそろった魅力的な平家のデザイナーズ住宅。開放感のある3方道路の立地と、ゆとりある駐車スペース、安心のオール電化など、快適な暮らしを実現する条件が整ったおすすめの物件です。ぜひ一度、現地にてこの住まいの魅力をご体感ください。お問い合わせをお待ちしております。

img_2996.jpg img_2997.jpg img_2998.jpg img_3013.jpg img_3005.jpg img_3004.jpg img_3007.jpg img_3008.jpg img_3009.jpg

築年月 平成26年11月(築11年)
構造・規模 鉄筋コンクリート造平家建
土地面積 175.00㎡ / 52.93坪
建物面積 73.94㎡ / 22.36坪
間取り 3LDK
土地権利 所有権
用途地域 無指定
建ぺい率 60%
容積率 200%
駐車場 3台
現況 所有者居住中
引渡し 相談
情報更新日 2026.03.8
備考

■自己居住住宅の緩和区域

お電話でのお問合せ 098-884-8742
 
メールでのお問合せ   ★は必須項目です

物件名:


★お名前:
住所:
★メールアドレス:
電話番号:
ご質問など:

お疲れ様でした。