売マンション価格変更しました
【ペガサスマンション曙401】
【所在】那覇市曙
【面積】68.40㎡(20.69坪)
【交通】倉庫前バス停 徒歩3分
【価格】2,080万円
那覇新港(安謝港)が目の前のマンションです!リノベーション済で室内は一新されています。賃貸中(オーナーチェンジ)です!

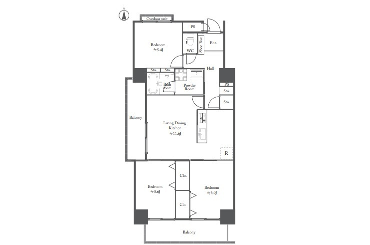
img_8620.jpg 外観 img_8666.jpg 外観 img_8624.jpg 外観 img_8625.jpg 外観 img_8626.jpg エントランス img_8629.jpg 玄関 img_8628.jpg 玄関 img_8630.jpg 玄関 img_8631.jpg 玄関 img_8632.jpg リビングダイニング img_8633.jpg リビングダイニング img_8634.jpg リビングダイニング img_8635.jpg リビングダイニング img_8636.jpg キッチン img_8637.jpg キッチン img_8638.jpg キッチン img_8639.jpg 洋室 img_8640.jpg 洋室 img_8641.jpg 洋室 img_8642.jpg 洋室 img_8643.jpg 洋室 img_8644.jpg 洋室 img_8645.jpg 洋室 img_8646.jpg 洋室 img_8647.jpg 洋室 img_8648.jpg 洋室 img_8649.jpg 洋室 img_8650.jpg 洋室 img_8651.jpg 廊下収納 img_8652.jpg 廊下収納 img_8653.jpg WC img_8654.jpg 洗面室 img_8655.jpg 洗面室 img_8656.jpg 浴室 img_8657.jpg バルコニー img_8658.jpg バルコニー img_8659.jpg 眺望 img_8660.jpg 眺望 img_8661.jpg 眺望 img_8662.jpg バルコニー img_8663.jpg バルコニー img_8664.jpg 眺望 img_8665.jpg 眺望 plan_20230220112423933.jpg 間取

築年月 昭和62年7月
構造・規模 鉄骨鉄筋コンクリート造11階建て4階部分
専有面積 68.40㎡ / 20.69坪
バルコニー面積 13.97㎡ / 4.22坪
間取り 3LDK
土地権利 所有権
用途地域 商業地域
総戸数 29戸
管理形態 委託管理
管理会社 ㈱ナイスマネジメント
管理費 10,500円/月
修繕積立金 14,490円/月
駐車場 空無
現況 空室
引渡し 相談
情報更新日 2025.11.17
備考

賃貸中です!(96,000円/月)
・リノベーション済み
 (■システムキッチン交換■ユニットバス交換■洗面化粧台交換■洗濯パン交換
  ■ウォシュレット付トイレ交換■フローリング張替■建具交換
  ■クロス貼替■ガス給湯器交換■LEDシーリングライト設置 等)

お電話でのお問合せ 098-884-8742
 
メールでのお問合せ   ★は必須項目です

物件名:


★お名前:
住所:
★メールアドレス:
電話番号:
ご質問など:

お疲れ様でした。