売マンション価格変更しました
【ライオンズパレス山川】
【所在】那覇市首里山川町
【面積】69.71㎡(21.08坪)
【交通】山川バス停徒歩6分・モノレール「市立病院前駅」徒歩14分
【価格】2,499万円
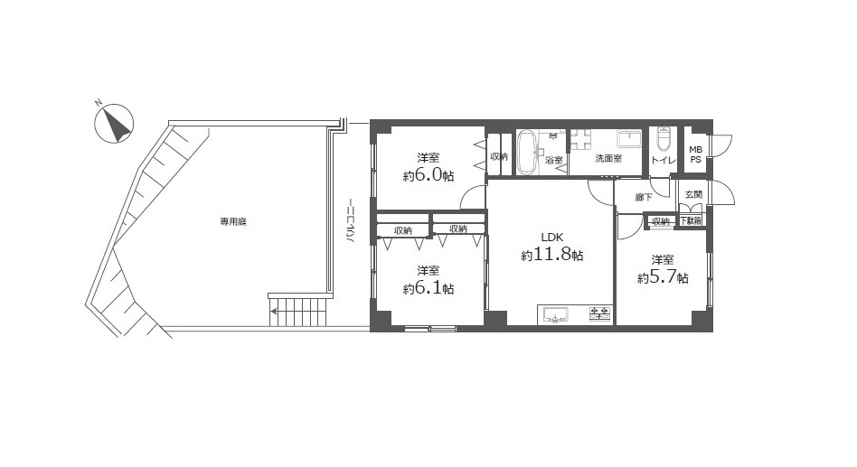
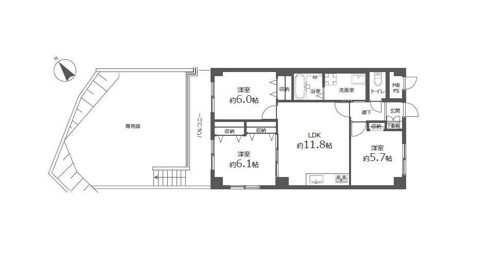
専用庭付きの3LDKリフォーム物件です!

img_4612.jpg img_4614.jpg img_4615.jpg img_4616.jpg img_4495.jpg img_4499.jpg img_4506.jpg img20250317122038439510.jpg img20250317122038351439.jpg img20250317122038386943.jpg img20250317122035455883.jpg img20250317122035283124.jpg img20250317122035621440.jpg img20250317122035557022.jpg img20250317122035706061.jpg img20250317122036673402.jpg img20250317122032288604.jpg img20250317122035344458.jpg img20250317122036887410.jpg img20250317122036818667.jpg img20250317122037049975.jpg img20250317122036974672.jpg img20250317122038507495.jpg img20250317122032508831.jpg img20250317122032486714.jpg img20250317122032327384.jpg img20250317122032660608.jpg img20250317122037202748.jpg img20250317122037996263.jpg plan_20250317122851488.jpg

築年月 平成5年1月
構造・規模 鉄筋コンクリート造5階建
専有面積 69.71㎡ / 21.08坪
バルコニー面積 8.99㎡ / 2.71坪  【専用庭:29.73㎡ / 8.99坪】
間取り 3LDK
土地権利 所有権
用途地域 第一種低層
総戸数 46戸
管理形態 委託
管理会社 ㈱大京アステージ
管理費 8,160円/月
修繕積立金 12,550円/月
駐車場 3,000円/月~7,000円/月
現況 空室
引渡し 相談
情報更新日 2025.09.30
備考

・リフォーム済み
 (■システムキッチン交換■洗面化粧台交換■洗濯パン交換■ユニットバス交換
  ■ウォシュレット付トイレ交換■フローリング張替■建具交換
  ■クロス貼替■ガス給湯器交換■シーリングライト設置 等)

お電話でのお問合せ 098-884-8742
 
メールでのお問合せ   ★は必須項目です

物件名:


★お名前:
住所:
★メールアドレス:
電話番号:
ご質問など:

お疲れ様でした。